Ein Ruhehaus im Geibeltbad Pirna

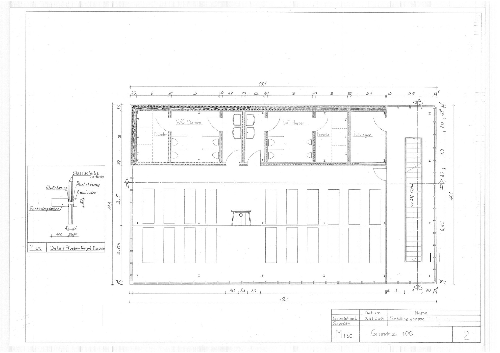
Das Ziel dieser Arbeit ist das Entwerfen eines Ruhehauses auf einer bereits bestehenden Thermenanlage in Pirna. Ein attraktives Erscheinungsbild, optimaler für die Nutzung Grundriss, Tragkonstruktion in Skelettbauweise, durchdachte und effiziente konstruktive Lösungen sind dabei die Hauptvoraussetzungen. Es handelt sich um eine Stahl-Skelettkonstruktion, die durch mehrere Konstruktionsdetails verdeutlicht wird. Das Projekt wurde von zwei Personen unter der Leitung vom Professor Peter Arne bearbeitet.

Gerne sende ich Ihnen ein detailliertes Portfolio. Bitte nutzen Sie das Kontaktformular um einen Zugang zum geschützten Bereich zu erhalten.